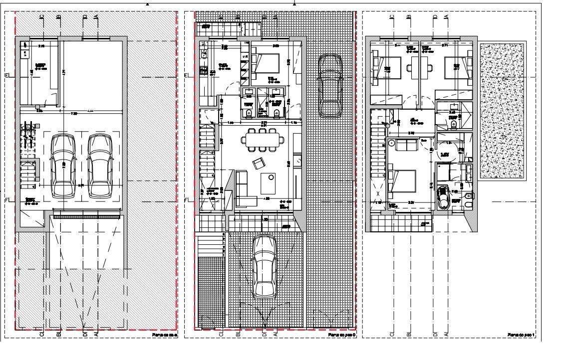
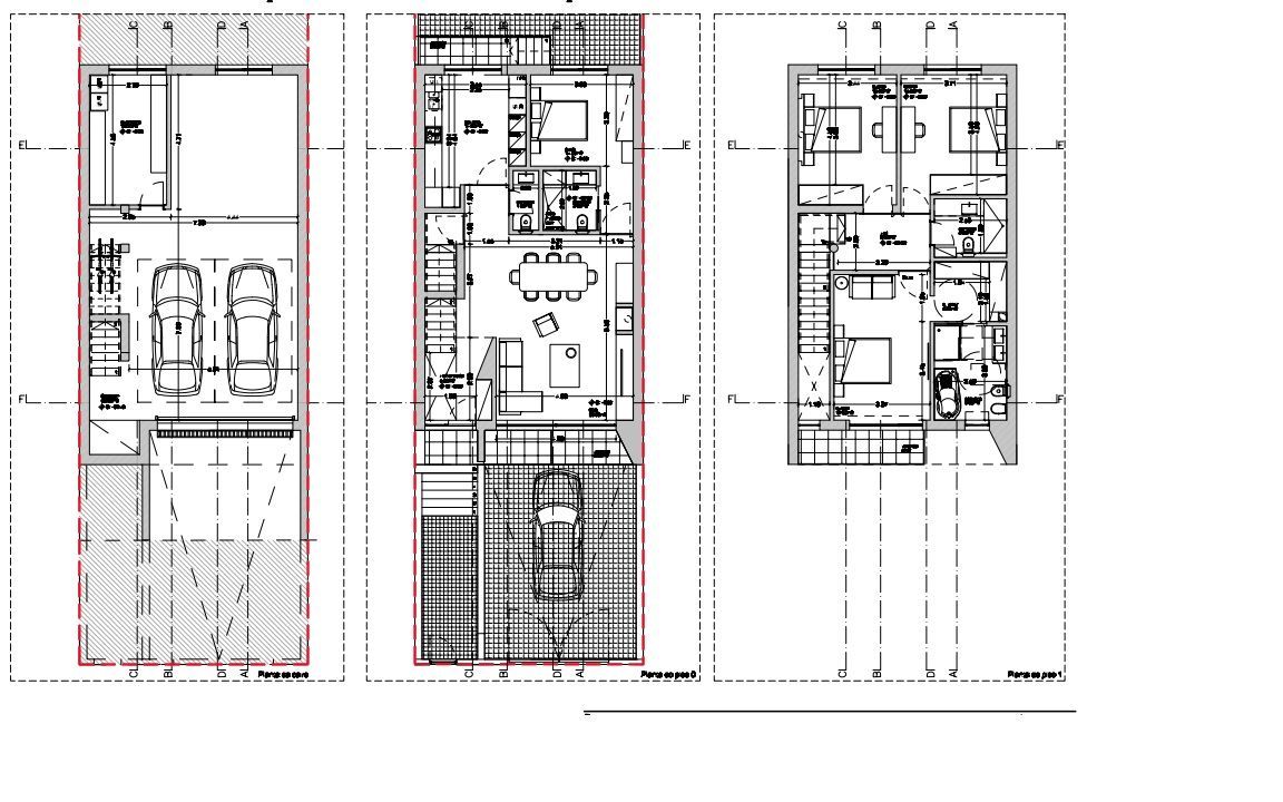
sOBRE O PROJECTO
Este projecto visa entregar moradias com alto padrão de construção, com vista a um elevado conforto e comodidade numa zona priveligiada de Viseu.
As características principais incluem:
- Isolamento térmico e acústico
- Ar condicionado Mitsubishi em todas as divisões
- Lareira com recuperador de calor
- Garagem com wallbox para carros EV
- Bomba de calor
- Instalações sanitárias com piso radiante
- VMC
- Cozinha e lavandaria equipada
- Alarme (intrusão, incêndio e inundação)




